Koï architecture sensible

GREENTECH

Travailler

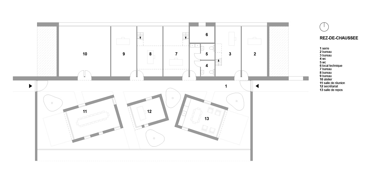
« GREENTECH », projet de pépinière d’entreprises, trouve le juste équilibre entre qualité spatiale, paysagère, optimisation du territoire et du bilan énergétique global. Il est destiné à accueillir en son sein des startups à vocation écologique et durable.

Le projet s’inscrit dans un écrin de verdure entre deux haies bocagères et tente d’être le plus en lien possible avec son site. Les deux bâtiments sont conçus comme des lanières qui s’étirent d’ouest en est. Ici l’architecture vient révéler le site.

L’idée du projet naît ici dans cette serre généreuse. L’usager bénéficie de ses bureaux privatifs et « sort de son espace de travail » pour aller dans les espaces partagés. Cet espace de « serre habitée » entre dedans et dehors permet à la fois d’agrandir les surfaces utiles aux mi saisons par le prolongement des planchers intérieurs vers des terrasses semi-extérieures.

Ce dispositif propose une autre façon de travailler, de vivre. La serre joue aussi un rôle de régulateur de température entre les bureaux et l’extérieur.

Typologie : immeuble tertiaire
Projet : construction neuve
Localisation : Les Herbiers
Surface : 495 m²
Année : 2014
 

Crédit photos : KOÏ architecture
Crédit texte : KOÏ architecture